Компания Энерго-План
Вы находитесь: Главная / Продукция / Металлоконструкции ЛЭП / Траверсы (ТМ,ТН,М)

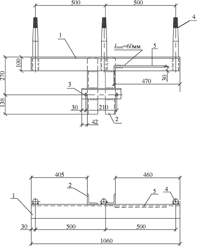
Траверса ТМ-64

Траверса ТМ-64 изготавливается согласно типового проекта 27.0002-29


Траверса ТМ-64 предназаначена для крепления проводов при установке опор 6-10кВ

 

 ПозицияНаименование детали Количество 
 1 Уголок 100х100х8 1
 2 Уголок 75х75х8 2
 3 Уголок 75х75х8 1
 4 Круг 30 3
 5 Круг 10 1

Общий вес-30 кг.

 

Заполнить заявкуПосмотреть в прайс-листе
Траверса ТМ-64

Траверса ТМ-64.Цена:1920 рублей.
офис: г.Екатеринбург, ул.Походная д.81, оф.4 (Схема проезда) тел: (343) 222-07-70 (многоканальный)